REQUEST A TOUR If you would like to see this home without being there in person, select the "Virtual Tour" option and your agent will contact you to discuss available opportunities.
In-PersonVirtual Tour

$ 1,100
Active
12 S Huron Ypsilanti, MI 48197
1,000 SqFt
UPDATED:
Key Details
Property Type Commercial
Sub Type Real Estate Only
Listing Status Active
Purchase Type For Rent
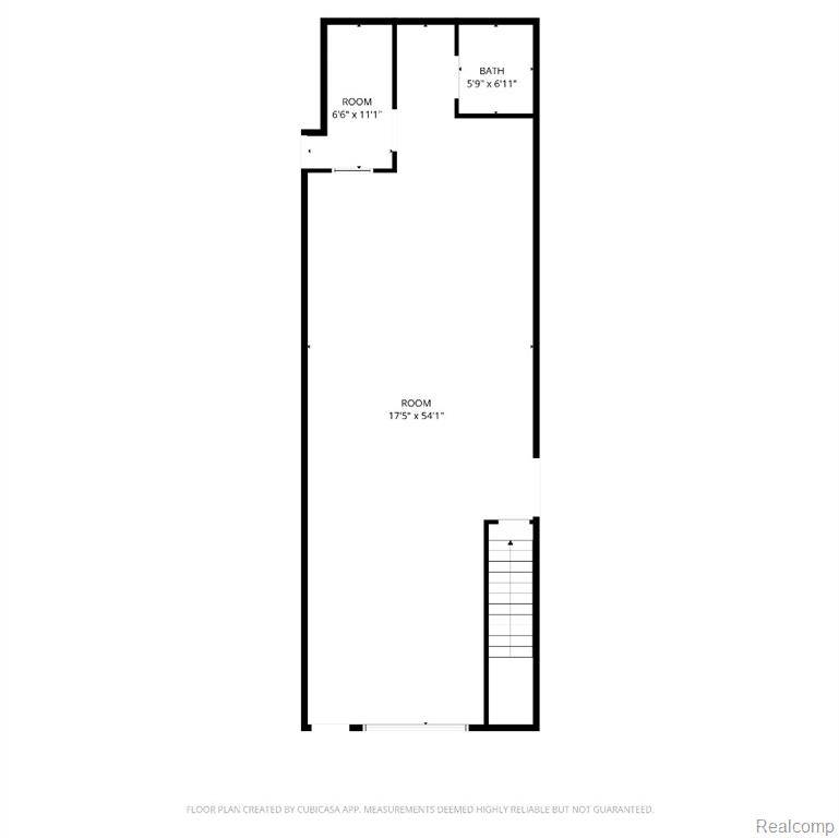
Square Footage 1,000 sqft
MLS Listing ID 20251040219
Year Built 1858
Lot Size 0.500 Acres
Acres 0.5
Lot Dimensions 66 x 99
Property Sub-Type Real Estate Only
Source Realcomp II Ltd
Property Description
Prime Downtown Storefront – 12 S Huron, Ypsilanti
Excellent visibility and location at the corner of Huron Street and Michigan Avenue, directly across from City Hall and just minutes from I-94. This approximately 1,000 SF commercial storefront offers a flexible open layout with one private office, a large basement storage area, and a private bathroom. The unit has been freshly painted and new ceiling tiles have been installed. Old flooring has been removed and the unit is ready for whatever flooring you need for your business. This unit has extra plumbing for an additional sink or kitchenette to be installed.
Positioned adjacent to a large public parking lot and surrounded by downtown businesses, restaurants, and services, this space is ideal for retail, office, or service use.
Lease Rate: $1,100/month (tenant pays utilities).
Don't miss the opportunity to establish your business in one of downtown Ypsilanti's most visible and high-traffic locations.
Excellent visibility and location at the corner of Huron Street and Michigan Avenue, directly across from City Hall and just minutes from I-94. This approximately 1,000 SF commercial storefront offers a flexible open layout with one private office, a large basement storage area, and a private bathroom. The unit has been freshly painted and new ceiling tiles have been installed. Old flooring has been removed and the unit is ready for whatever flooring you need for your business. This unit has extra plumbing for an additional sink or kitchenette to be installed.
Positioned adjacent to a large public parking lot and surrounded by downtown businesses, restaurants, and services, this space is ideal for retail, office, or service use.
Lease Rate: $1,100/month (tenant pays utilities).
Don't miss the opportunity to establish your business in one of downtown Ypsilanti's most visible and high-traffic locations.
Location
State MI
County Washtenaw
Area Ypsilanti
Zoning Commercial,Office
Direction Take Huron exit off 94, go north, unit is just south of Mich Ave on the left
Exterior
Road Frontage Paved
Building
Foundation Basement
Sewer Sewer (Sewer-Sanitary)
Water Public (Municipal)
Structure Type Brick
Schools
School District Ypsilanti
Others
Tax ID 111139101019
Ownership Private Owned
Acceptable Financing Lease
Listing Terms Lease
Financing Lease
Special Listing Condition Full Service

©2025 Realcomp II Ltd. Shareholders
Listed by Colleen Kennedy of Investors Realty Group

GET MORE INFORMATION
QUICK SEARCH