
808 Penninsula LN Big Bear Lake, CA 92315
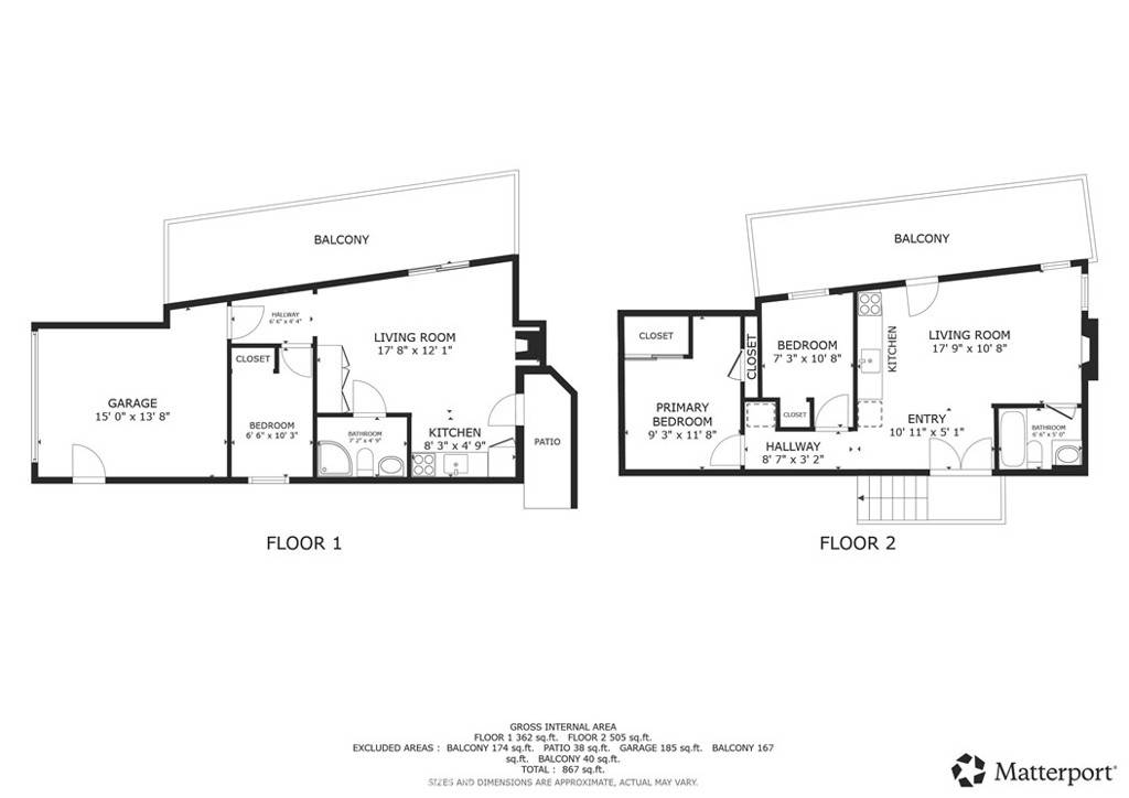
3 Beds
2 Baths
1,000 SqFt
UPDATED:
Key Details
Property Type Single Family Home
Sub Type Single Family Residence
Listing Status Active
Purchase Type For Sale
Square Footage 1,000 sqft
Price per Sqft $1,199
MLS Listing ID PW25215613
Bedrooms 3
Full Baths 2
Construction Status Turnkey
HOA Y/N No
Year Built 2024
Lot Size 2,892 Sqft
Property Sub-Type Single Family Residence
Property Description
Beautiful Cozy Bedrooms With More Million Dollar Views! Boasts a 1 Car Garage With an Electric Car Outlet, Overhead Storage and Direct Access! Remote Heated Driveway and Heated Guest Parking Spot! Dockside Sand Beach Patio With A Fire Pit, Perfect for Relaxation, S'mores, and Sunset Views After A Day On The Water! One Level Up and You Can Slip Into Your Lakeview Hot Tub! Central Air, Gas Heat And Water Conditioner! 1st Floor Bedroom, Bath, Living Room and Kitchenette With More Fabulous Views! (Could be used separately). Heavily Booked Short-Term Rental When The Owners Aren't Using or Improving! Big Bear Lake offers diverse attractions including winter sports at ski resorts, year-round family fun at the Alpine Slide and Magic Mountain Recreation Area, water activities like fishing and boating on the lake, hiking scenic trails, visiting the Big Bear Alpine Zoo, and exploring The Village at Big Bear Lake for shopping and dining.
Location
State CA
County San Bernardino
Area 289 - Big Bear Area
Rooms
Main Level Bedrooms 2
Interior
Interior Features Balcony, Open Floorplan
Heating Forced Air
Cooling Central Air
Flooring See Remarks
Fireplaces Type Living Room
Fireplace Yes
Appliance Dishwasher, Disposal, Microwave, Refrigerator, Range Hood
Laundry Washer Hookup, Inside, Stacked
Exterior
Exterior Feature Dock
Parking Features Concrete, Door-Single, Driveway, Garage, Garage Faces Side, See Remarks
Garage Spaces 1.0
Garage Description 1.0
Fence Wrought Iron
Pool None
Community Features Lake, Mountainous, Rural, Water Sports, Park
Utilities Available Electricity Connected, Natural Gas Connected, Sewer Connected, Water Connected
Waterfront Description Lake,Lake Front,Lake Privileges
View Y/N Yes
View Lake
Roof Type Composition
Porch See Remarks
Total Parking Spaces 3
Private Pool No
Building
Lot Description 0-1 Unit/Acre, Cul-De-Sac, Near Park
Dwelling Type House
Story 2
Entry Level Two
Sewer Public Sewer
Water Public
Architectural Style Custom
Level or Stories Two
New Construction No
Construction Status Turnkey
Schools
Middle Schools Big Bear
High Schools Big Bear
School District Bear Valley Unified
Others
Senior Community No
Tax ID 0306055040000
Security Features Carbon Monoxide Detector(s),Smoke Detector(s)
Acceptable Financing Cash, Cash to New Loan, Conventional
Listing Terms Cash, Cash to New Loan, Conventional
Special Listing Condition Standard
Virtual Tour https://youtu.be/jdGrN437mZg







